AAA-Planned Parking Structure In University Park Heads Before Planning Commission

Designed by Corgan, the structure would contain space for more than 700 cars

Dean Boerner
Written By Dean Boerner
News Writer
Rendering: Official

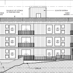
Plans by AAA for a four-and-a-half-story, 700-plus space parking structure across West 27th Street from its University Park offices will go before the Los Angeles Planning Commission on Thursday, the commission’s meeting agenda shows.

The roughly 200,000-square-foot, 48-foot-tall structure would rise at 640 – 700 W. 27th St., in place of a 247-space surface parking lot currently used by AAA employees and owned by the motor club federation. Its design is led by national architecture and design firm Corgan, plans show.

A planning staff report on the proposal recommends the city approve the project, concluding it would facilitate the creation of about 400 jobs. It would hold space for up to 750 automobiles and 59 bikes.

The project would also provide about 18,000 square feet of publicly accessible open space, as well as roughly 13,500 square feet of landscaping and the maintenance of the site’s existing trees.

Project Site: Official
Rendering: Official
Rendering: Official
Rendering: Official
Rendering: Official
Rendering: Official
Rendering: Official

Love our content?
Add WhatNow as a preferred source on Google to see more of our trusted coverage when you search.

Be the First to Know

From new restaurant openings to exciting retail launches and real estate insights, be the first to know what’s happening in Los Angeles

Share This Article
Leave a Comment

Leave a Reply

Your email address will not be published. Required fields are marked *